GALLERY
PROPERTY DETAIL
Key Details
Sold Price $380,0009.5%
Property Type Single Family Home
Sub Type Single Family Residence
Listing Status Sold
Purchase Type For Sale
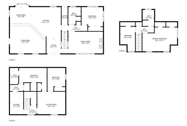
Square Footage 2, 878 sqft
Price per Sqft $132
MLS Listing ID 20252832
Sold Date 07/16/25
Style Two Story
Bedrooms 4
HOA Y/N false
Year Built 1972
Acres 1.0
Lot Dimensions Irregular
Property Sub-Type Single Family Residence
Location
State CO
County Rio Blanco
Area Rangely
Direction MAIN STREET TO MESA DRIVE. TURN SOUTH ON MESA DRIVE. TURN LEFT ON RIDGE DRIVE AND TURN LEFT ON HILLCREST DRIVE. BEFORE TAKING THE CORNER, TURN RIGHT AND SORTA KEEP GOING STRAIGHT TO THE HOUSE. IT IS HIDDEN BACK AT THE END OF THE STREET.
Rooms
Basement Full
Building
Lot Description Adjacent To Public Land, Bluff, Landscaped
Faces South
Sewer Connected
Water Public
Additional Building Shed(s)
Structure Type Metal Siding,Wood Frame
Interior
Interior Features Ceiling Fan(s), Upper Level Primary, Walk-In Closet(s), Walk-In Shower, Window Treatments
Heating Forced Air, Natural Gas
Cooling Central Air, Evaporative Cooling
Flooring Carpet, Tile
Fireplaces Type Living Room, Wood Burning
Fireplace true
Window Features Window Coverings
Appliance Dishwasher, Electric Oven, Electric Range, Refrigerator
Laundry Laundry Room, Washer Hookup, Dryer Hookup
Exterior
Exterior Feature Shed
Parking Features Detached, Garage, RV Access/Parking
Garage Spaces 2.0
Fence Partial
Roof Type Asphalt,Composition
Present Use Residential,Single Family
Street Surface Paved
Handicap Access None, Low Threshold Shower
Porch Covered, Deck, Open, Patio
Garage true
Schools
Elementary Schools Parkview
Middle Schools Rangely
High Schools Rangley
Others
HOA Fee Include None
Tax ID 1393-012-10-022
CONTACT









